close
Find a Property
Back to property listings

4 Bedroom House for sale

Offers Over £850,000
Whitchurch Gardens, Edgware, HA8 - Sale Agreed
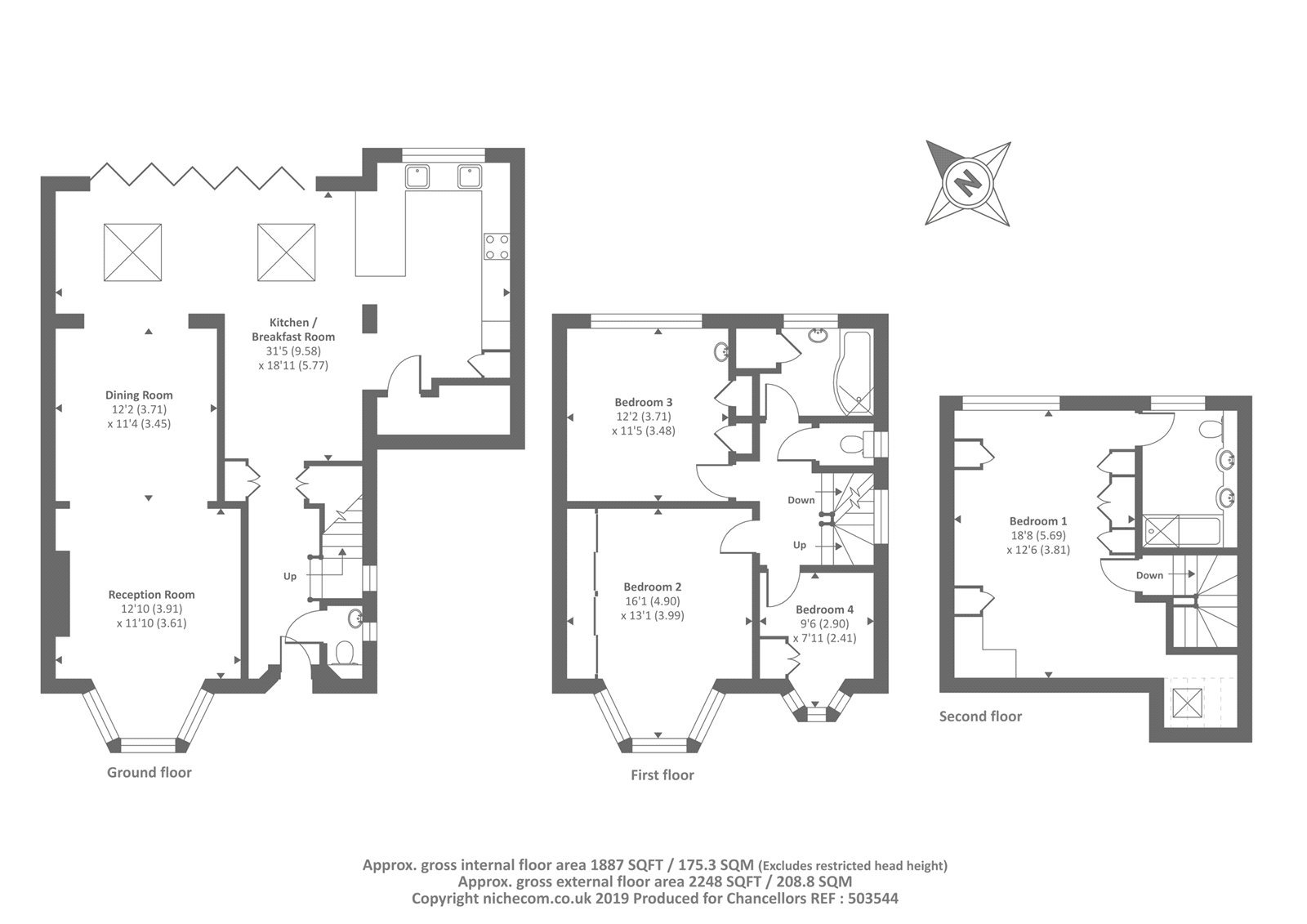
Key Features & Description
  • Chain Free
  • Potential to extend to create 5th bedroom and en-suite
  • Four bedrooms
  • Two bathrooms | Additional WC
  • Open Plan Double Reception | Dining Room
  • Modern Kitchen/Breakfast room | Additional Family Room
  • Over three floors
  • Garden with a patio | Off street parking
  • Excellent condition throughout
  • Close to local amenities | Within The Eruv
  • 2,248 Total Sq. Ft. (208.8 Sq. M)

Gibbs Gillespie are pleased to present this delightful four-bedroom, two-bathroom, family home situated on a secluded residential road within the eruv, proximity to Canons Park tube station (Jubilee) as well as Edgware station (Northern Line) and multiple shopping and transport facilities. On the ground floor, the property encompasses a welcoming entrance hallway leading to on the left a large double, open plan reception/dining room. There is substantial modern fitted kitchen, with integrated appliances and breakfast bar area, this flows elegantly into another reception and dining area. There is a separate utility/storage space and a ground floor w/c. To the first floor, there are three bedrooms, two of which are large doubles and the third being a larger than usual single bedroom, there is a family bathroom with a separate w/c. To the second floor, there is a large principal bedroom...

read moreless
How much is your property worth?

Selling or Letting? Get a free and up-to-date valuation from one of our experts.

Register for Property Alerts

Buying or Renting? Don't miss out! Be the first through the door of newly listed homes.

Map & Explore Nearby

Calculate your monthly mortgage payments.

Calculations by

Click here for FREE no obligation Mortgage Advice

Calculate how much stamp duty you will have to pay based on the purchase price of the property.

Use our buy to let return on investment calculator to quickly assess suitable investment opportunities.

Property Value £0
Monthly Rental £0

Your estimated rental yield would be:


Stanmore Area Guide

The leafy streets of this North London suburb make it the perfect gateway to the tranquil Hertfordshire countryside that lies beyond. However, Stanmore is only a direct Tube journey away from Canary Wharf and is, therefore, bound to be on the radar of those looking for an easier work/life balance. Stanmore is packed with tree-lined avenues which are complemented by High Street that features large supermarkets as well as independent shops and family-friendly restaurants.

The property scene in Stanmore has been livened up by the addition of developments like Stanmore Place that are set on providing living refinements that match those found in London’s Zone 1 and 2 districts. For those with larger budgets, Bentley Priory features luxurious homes in an exclusive gated location.

Living so close to the Greater London border means that there is ample space for outdoor pursuits and this is reflected in the numerous parks, golf clubs, and woodland reserves that dot the area. Some of the top independent schools in the UK are located just a few miles from Stanmore town centre.

find out more
Property Market Intelligence

Providing data-driven insight into the local residential property market.

Areas Covered by Gibbs Gillespie Stanmore

Click here to view all the data and analysis on how the local property market is performing today.

Data refers to prices and sales numbers achieved in the last 12 months (all residential property types).
House price change compares average prices achieved in the last 12 months with the previous 12 month period.
Sources: Dataloft, Land Registry, Dataloft Rental Market Analytics

Offers Over £850,000
Property Valuation

We enjoy intimate and unparalleled knowledge of property values in your area.