close
Find a Property
Back to property listings

5 Bedroom House for sale

Guide price: £825,000
Lincoln Road, Harrow, HA2
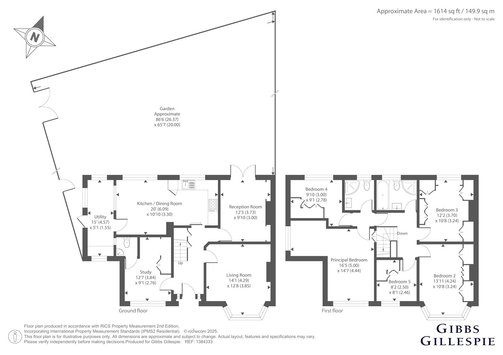
Key Features & Description
  • Offered Chain Free
  • Semi Detached House
  • Five Bedrooms
  • Three Reception Rooms
  • Study
  • Two Bathrooms
  • Garden
  • Off Street Parking
  • Downstairs w.c

This extended five-bedroom semi-detached home offers generous and versatile living space throughout, making it ideal for growing families. The ground floor features two bright and spacious reception rooms, a separate study, a convenient downstairs W.C., a utility room, and a well-appointed kitchen/diner perfect for everyday living and entertaining. Upstairs, the property offers five bedrooms and two modern bathrooms, providing comfortable accommodation for the whole family. To the rear, you’ll find a well-maintained garden offering a private outdoor retreat, while parking is available via side access. Directly opposite the property is an entrance to Yeading Brook, a lovely local green space perfect for walks and recreation. The home is ideally located close to Pinner High Street with its wide range of shops, cafés, restaurants, and the Underground Station. North Harrow Underground...

read moreless
How much is your property worth?

Selling or Letting? Get a free and up-to-date valuation from one of our experts.

Register for Property Alerts

Buying or Renting? Don't miss out! Be the first through the door of newly listed homes.

Map & Explore Nearby

Calculate your monthly mortgage payments.

Calculations by

Click here for FREE no obligation Mortgage Advice

Calculate how much stamp duty you will have to pay based on the purchase price of the property.

Use our buy to let return on investment calculator to quickly assess suitable investment opportunities.

Property Value £0
Monthly Rental £0

Your estimated rental yield would be:


Pinner Area Guide

Located within a residential area on the outer fringes of north-west London, Pinner has retained much of its ancient charm, particularly in the original village centre, despite its proximity to the capital.

With its church and delightful mock-Tudor buildings, Pinner is a picturesque place for a stroll and there are some lovely places to eat along the High Street and some charming gift shops too.

Considered the more affluent side of the London Borough of Harrow, Pinner has a strong sense of community, with four key events each year. Celebrations for St George’s Day in April, Pinner Fair in May, the Pinner Village Show in Pinner Memorial Park on the second Saturday in September and Pinner Pantomime Evening, which takes place on the last Thursday of each November.

find out more
Property Market Intelligence

Providing data-driven insight into the local residential property market.

Areas Covered by Gibbs Gillespie Estate Agents in Pinner

Click here to view all the data and analysis on how the local property market is performing today.

Data refers to prices and sales numbers achieved in the last 12 months (all residential property types).
House price change compares average prices achieved in the last 12 months with the previous 12 month period.
Sources: Dataloft, Land Registry, Dataloft Rental Market Analytics

Guide price: £825,000
Property Valuation

We enjoy intimate and unparalleled knowledge of property values in your area.