close
Find a Property
Back to property listings

2 Bedroom Flat/Apartment for sale

Offers Over £599,950
Old Lodge Way, Stanmore, HA7
Key Features & Description
  • Highly Desirable Location
  • Chain Free | Well Presented
  • Share of Freehold | Second Floor Apartment with Lift
  • Two Bedrooms | Two Modern Bathrooms
  • Separate Modern Fitted Kitchen | Integrated Appliances
  • Open Plan Spacious Reception | Dining Room
  • Balcony | Great Views Overlooking Communal Grounds
  • Designated Space in Locked Garage | Plus Guest Parking
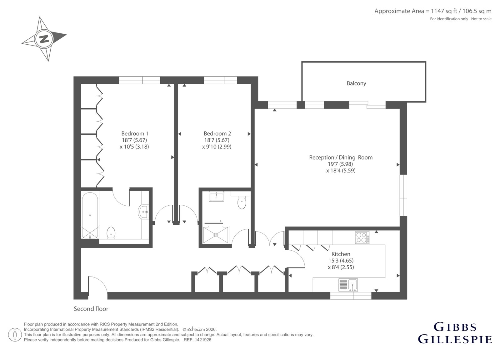
  • Total Sq. ft of 1,147 (106.5 Sq. m)

Guide £600,000 - £615,000. Enjoying a tranquil setting in one of Stanmore’s finest streets is this beautiful two-bedroom, two-bathroom, premium apartment with very good natural light and a lot of storage. The property is situated in a highly desirable road, forming part of the historic Old Lodge Estate which benefits from expansive views of Bentley Priory Nature Reserve. This second-floor apartment offers over 1,147 Sq. Ft. of internal lateral space, consisting of two large double bedrooms, two modern bathrooms including ensuite to the principal bedroom. A modern fitted kitchen, open plan dining room/reception room leading to a large balcony with magnificent views over the well-maintained communal gardens. There is substantial amounts of residential parking surrounded by communal gardens. Chain free ready for immediate occupation. Old Lodge Way is well positioned for easy reach of...

read moreless
How much is your property worth?

Selling or Letting? Get a free and up-to-date valuation from one of our experts.

Register for Property Alerts

Buying or Renting? Don't miss out! Be the first through the door of newly listed homes.

Map & Explore Nearby

Calculate your monthly mortgage payments.

Calculations by

Click here for FREE no obligation Mortgage Advice

Calculate how much stamp duty you will have to pay based on the purchase price of the property.

Use our buy to let return on investment calculator to quickly assess suitable investment opportunities.

Property Value £0
Monthly Rental £0

Your estimated rental yield would be:


Stanmore Area Guide

The leafy streets of this North London suburb make it the perfect gateway to the tranquil Hertfordshire countryside that lies beyond. However, Stanmore is only a direct Tube journey away from Canary Wharf and is, therefore, bound to be on the radar of those looking for an easier work/life balance. Stanmore is packed with tree-lined avenues which are complemented by High Street that features large supermarkets as well as independent shops and family-friendly restaurants.

The property scene in Stanmore has been livened up by the addition of developments like Stanmore Place that are set on providing living refinements that match those found in London’s Zone 1 and 2 districts. For those with larger budgets, Bentley Priory features luxurious homes in an exclusive gated location.

Living so close to the Greater London border means that there is ample space for outdoor pursuits and this is reflected in the numerous parks, golf clubs, and woodland reserves that dot the area. Some of the top independent schools in the UK are located just a few miles from Stanmore town centre.

find out more
Property Market Intelligence

Providing data-driven insight into the local residential property market.

Areas Covered by Gibbs Gillespie Stanmore

Click here to view all the data and analysis on how the local property market is performing today.

Data refers to prices and sales numbers achieved in the last 12 months (all residential property types).
House price change compares average prices achieved in the last 12 months with the previous 12 month period.
Sources: Dataloft, Land Registry, Dataloft Rental Market Analytics

Offers Over £599,950
Property Valuation

We enjoy intimate and unparalleled knowledge of property values in your area.