close
Find a Property
Back to property listings

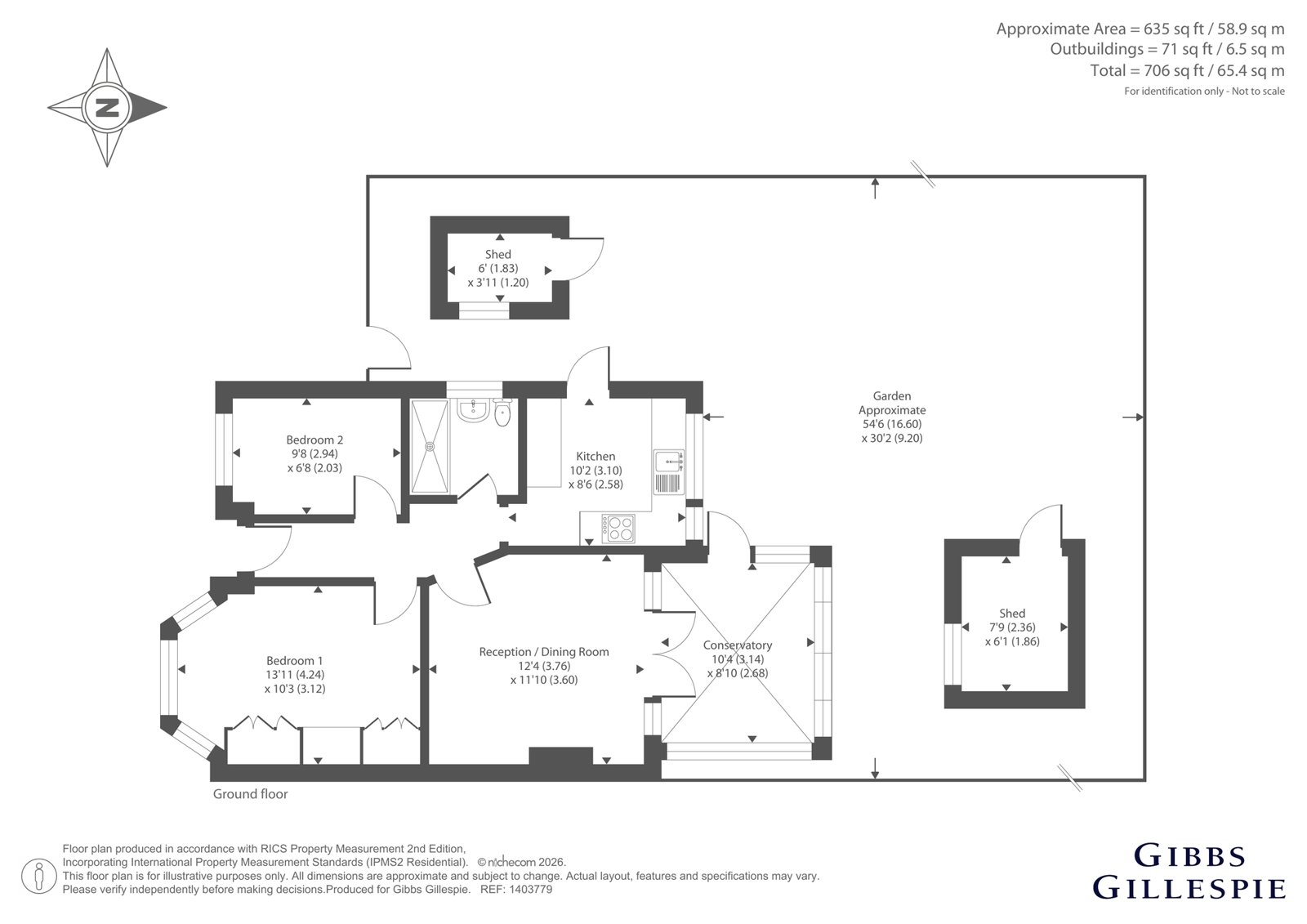
2 Bedroom Bungalow for sale

Guide price: £530,000
Coniston Gardens, Pinner, Middlesex, HA5
Key Features & Description
  • Semi Detached Bungalow
  • Two Bedrooms
  • Reception/Dining Room
  • Fitted Kitchen
  • Shower Room
  • Conservatory
  • Off Street Parking
  • Private Rear Garden
  • Scope for extension (STPP)
  • No Chain

Located on a quiet and popular road in the heart of Old Eastcote is this spacious two-bedroom semi-detached bungalow. Ideal for a growing family looking to extend and add space as well as value or buyers looking downsize to create the perfect home. Excellent potential to extend subject to the normal planning consents. The property comprises a spacious reception/dining room, modern fitted kitchen and a conservatory. Completing the property are two good sized bedrooms and a well-appointed shower room. Outside a driveway provides off-street parking and to the rear is a private garden with laid lawn and a patio area ideal for relaxing and entertaining. Coniston Gardens is just moments from the shopping and transport facilities of Eastcote, Northwood Hills and Pinner including the Metropolitan and Piccadilly line rail station. Eastcote Park Gardens is nearby as well as Park Woods and...

read moreless
How much is your property worth?

Selling or Letting? Get a free and up-to-date valuation from one of our experts.

Register for Property Alerts

Buying or Renting? Don't miss out! Be the first through the door of newly listed homes.

Map & Explore Nearby

Calculate your monthly mortgage payments.

Calculations by

Click here for FREE no obligation Mortgage Advice

Calculate how much stamp duty you will have to pay based on the purchase price of the property.

Use our buy to let return on investment calculator to quickly assess suitable investment opportunities.

Property Value £0
Monthly Rental £0

Your estimated rental yield would be:


Ruislip Area Guide

One of the best-connected towns in the commuter belt.

Ruislip is a town in the London Borough of Hillingdon, north west London.

It’s only 14 miles from the heart of the city, but comes with benefits including quiet residential streets, green spaces and even its own beach. And, taking just 30 minutes to the centre of London by train, the area is also an ideal commuter spot.

Then there’s the excellent schools, all of which contributes to Ruislip’s popularity amongst home buyers of all demographics.

find out more
Property Market Intelligence

Providing data-driven insight into the local residential property market.

Areas Covered by Gibbs Gillespie Ruislip Sales

Click here to view all the data and analysis on how the local property market is performing today.

Data refers to prices and sales numbers achieved in the last 12 months (all residential property types).
House price change compares average prices achieved in the last 12 months with the previous 12 month period.
Sources: Dataloft, Land Registry, Dataloft Rental Market Analytics

Guide price: £530,000
Property Valuation

We enjoy intimate and unparalleled knowledge of property values in your area.