close
Find a Property
Back to property listings

3 Bedroom House to rent

£2,450 per month
Available from 27/09/2025
Vernon Drive, Stanmore, HA7 2BT Fees Apply
Key Features & Description
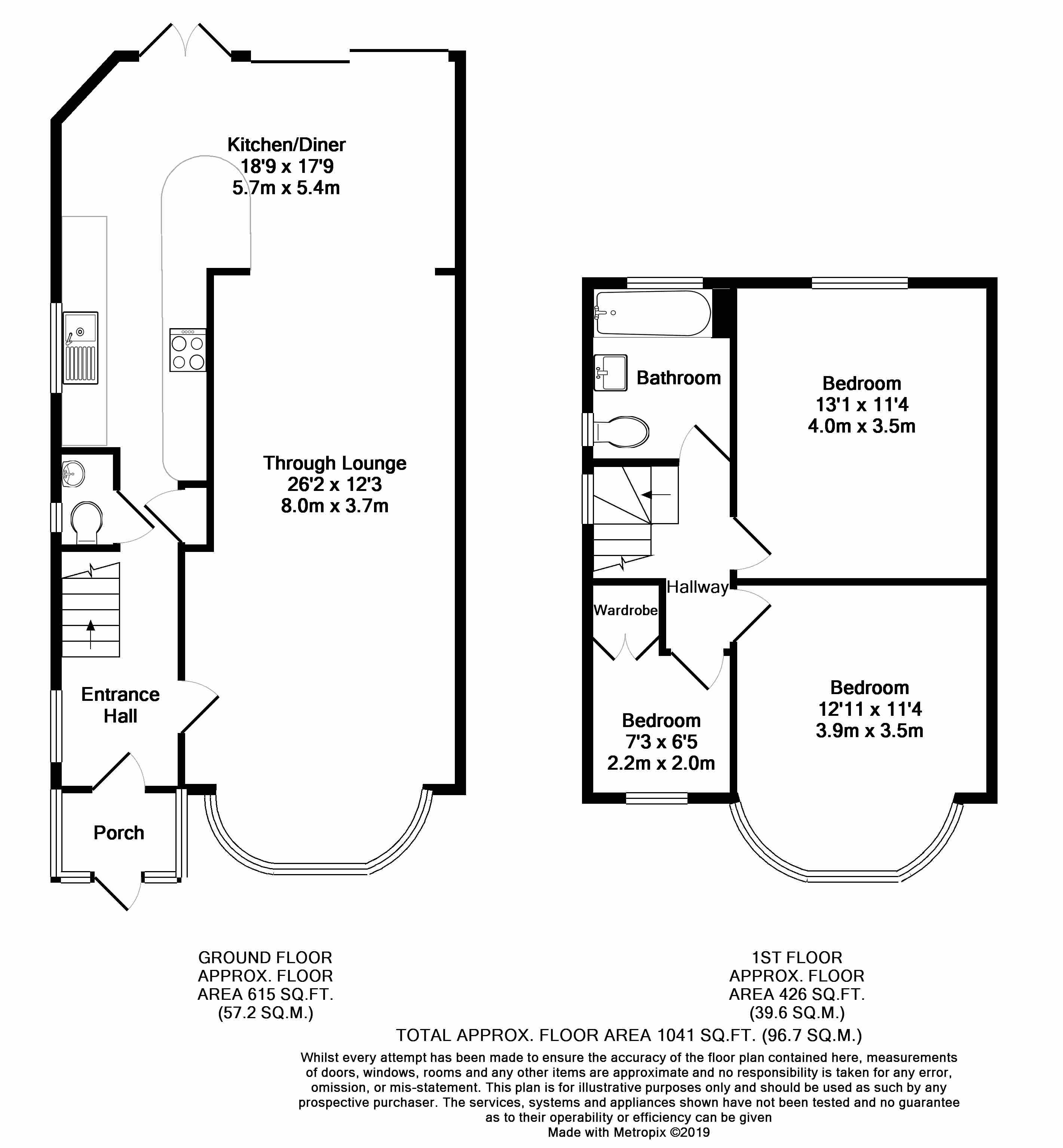
  • Three bedroom semi detached house
  • A family bathroom suite
  • Large reception room
  • Fitted kitchen
  • No Deposit Option available to Tenants!
  • Part furnished
  • Driveway

*** NO DEPOSIT OPTION AVAILABLE FOR TENANTS! (ask for further details)*** Three bedroom semi-detached family house offering ample living space and is ideal for the a small family. Accommodation comprises of porch leading to entrance hall with access to a large through lounge with fitted wood flooring, leading to a open plan kitchen / dining space with sliding doors onto elevated decking area. There is also a guest WC on the ground floor. Upstairs there are two generous double rooms, a single with built in wardrobes and a modern family bathroom featuring bath with shower above. The property also benefits from off street parking and a private rear garden. The property is located on Vernon Drive which is a continuation of Mountside in Stanmore, close to local shops and transport links. Further Details:- Local Authority: London Borough of Harrow Council Tax: £2,928.27 (Band E) 2025 /26...

read moreless
How much is your property worth?

Selling or Letting? Get a free and up-to-date valuation from one of our experts.

Register for Property Alerts

Buying or Renting? Don't miss out! Be the first through the door of newly listed homes.

Map & Explore Nearby
£2,450 per month
Available from 27/09/2025
Property Valuation

We enjoy intimate and unparalleled knowledge of property values in your area.