Welcome to The Pipers, Edgware – An Exclusive Collection of Three Luxury New Homes Nestled within one of Edgware’s most desirable residential enclaves, The Pipers presents an exclusive collection of just three individually designed, newly built five-bedroom detached homes. Each residence is thoughtfully crafted to combine architectural elegance, luxurious finishes, cutting-edge smart home technology and the benefit of 24 hour security patrol. This homes showcase approximately 3,503 sq ft of meticulously planned living spaces, arranged over three beautifully designed floors. Every detail reflects a commitment to craftsmanship, comfort, and contemporary sophistication. Ground Floor A grand entrance hall sets the tone with its bespoke solid wood staircase, illuminated feature lighting, and glass balustrades, a striking focal point that defines the home’s modern aesthetic. The open-plan...
Welcome to The Pipers, Edgware – An Exclusive Collection of Three Luxury New Homes
Nestled within one of Edgware’s most desirable residential enclaves, The Pipers presents an exclusive collection of just three individually designed, newly built five-bedroom detached homes. Each residence is thoughtfully crafted to combine architectural elegance, luxurious finishes, cutting-edge smart home technology and the benefit of 24 hour security patrol.
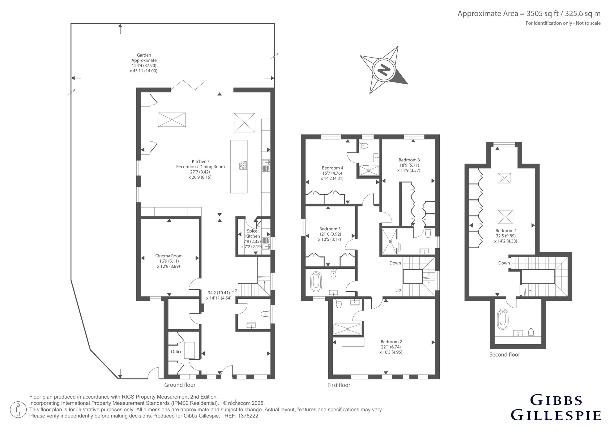
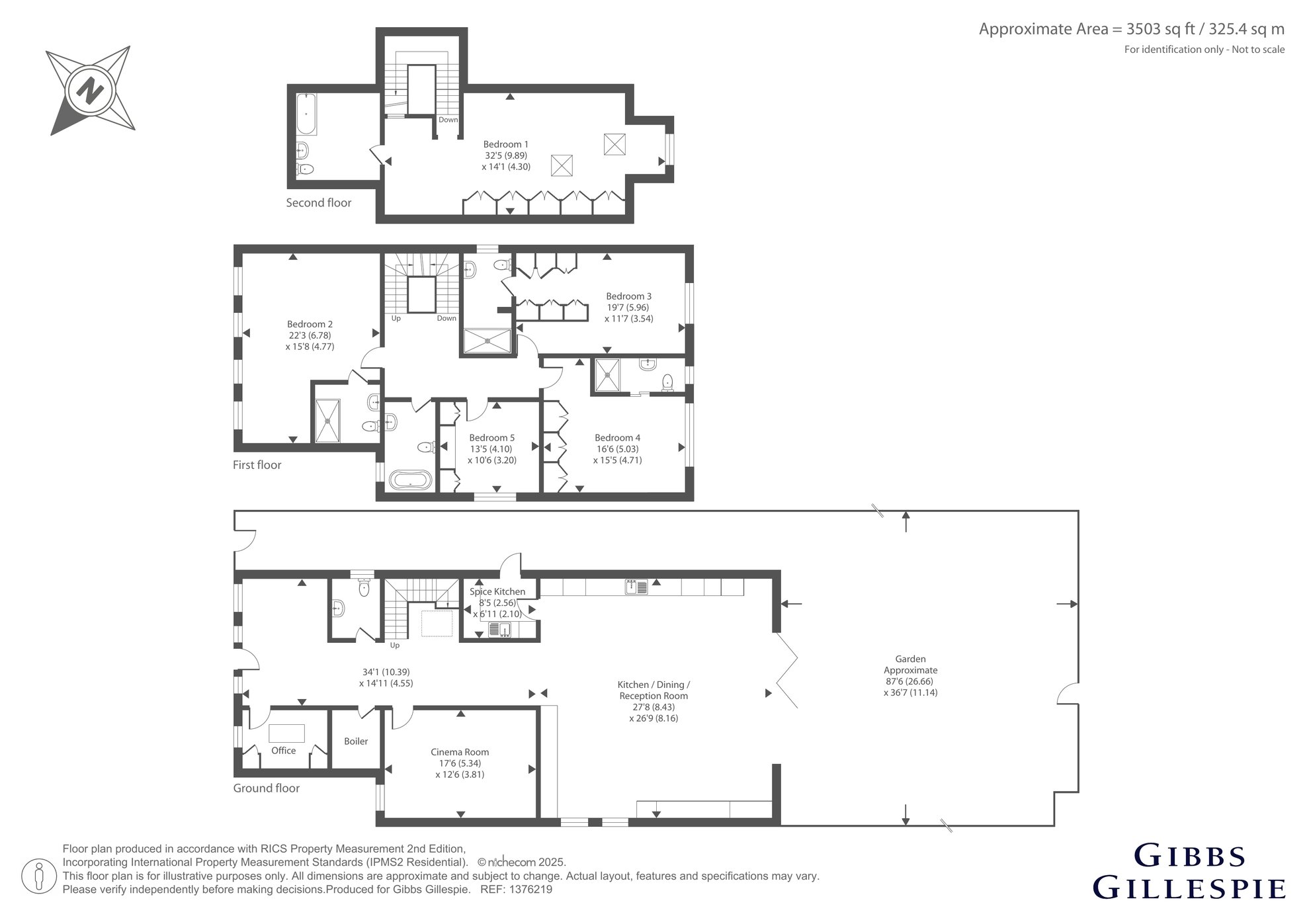
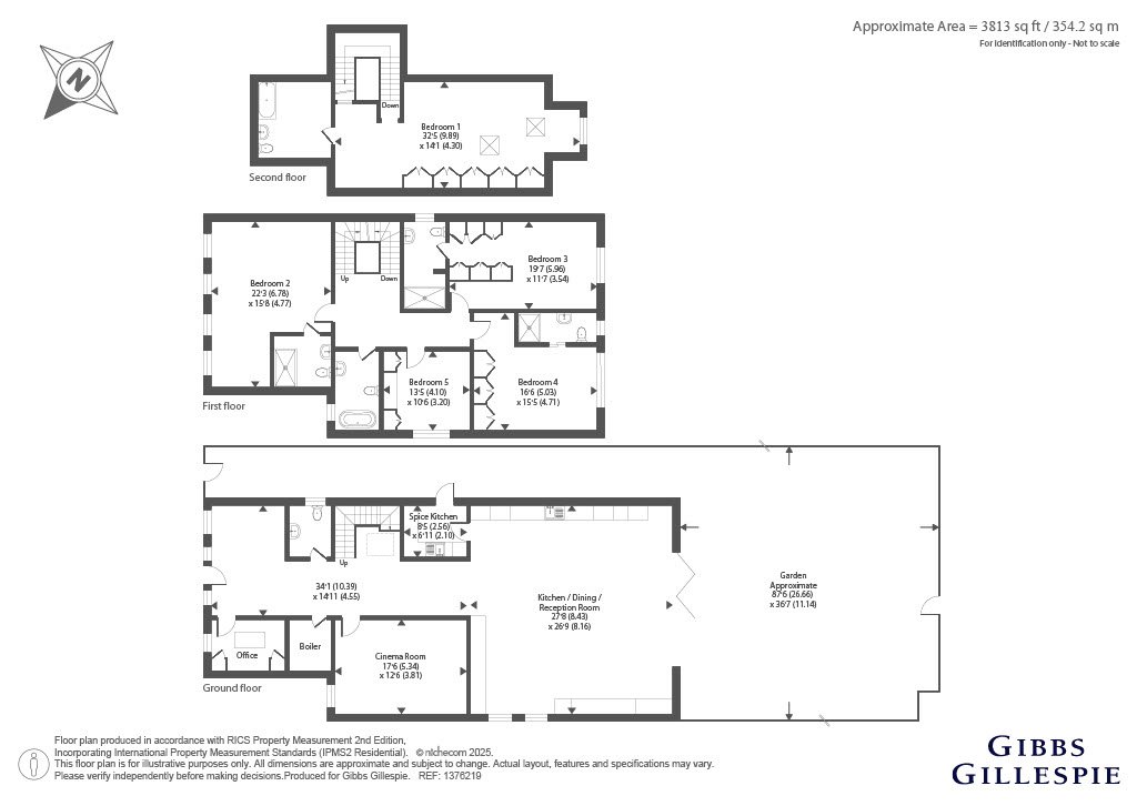
This homes showcase approximately 3,503 sq ft of meticulously planned living spaces, arranged over three beautifully designed floors. Every detail reflects a commitment to craftsmanship, comfort, and contemporary sophistication.
Ground Floor
A grand entrance hall sets the tone with its bespoke solid wood staircase, illuminated feature lighting, and glass balustrades, a striking focal point that defines the home’s modern aesthetic. The open-plan kitchen, living, and dining area is the heart of the property, designed for both relaxed family living and elegant entertaining.
The Italian-designed kitchen features Miele integrated appliances, high-quality quartz worktops, a Quooker hot tap, and a single Franke sink, complemented by a domino hob with downdraft extractor and a secondary gas cooking area. Under-cabinet lighting and bespoke herringbone wood flooring complete the sophisticated look.
Expansive bi-folding aluminium doors lead to the landscaped rear garden, creating a seamless flow between indoor and outdoor spaces. The ground floor also offers a dedicated working kitchen/utility room, a cinema room perfect for family movie nights, a study, and a guest cloakroom.
Upper Floors
The first and second floors host five spacious bedrooms, each finished with bespoke fitted wardrobes, feature mirror and TV panels, and luxury carpets. Bosch-fitted ceiling speakers are installed throughout for integrated sound. The principal suite includes a walk-in wardrobe and a luxurious en-suite bathroom.
Three further bedrooms feature designer en-suite bathrooms with high-quality white sanitaryware, bespoke marble sinks, Crosswater mixers, Grohe wall-mounted WCs, freestanding baths with concealed LED lighting, and heated towel rails. The family bathrooms maintain the same premium standard.
Design and Technology
Underfoot, bespoke wood flooring flows through the main areas with underfloor heating throughout the entire home. The Lutron smart lighting system offers full customisation, while a comprehensive security and audio system, CCTV, and video intercom ensure complete peace of mind.
Additional features include USB sockets throughout, black and bronze designer switches and dimmers, and Cat 6 data points in key rooms. Every element has been considered for both convenience and style.
Exterior
The property is approached via a large driveway offering parking for up to five cars, with electric vehicle charging points. The rear garden is attractively landscaped with a paved patio, central walkway, and bespoke outbuilding, ideal as a home office, studio, or gym. External lighting to the front, side, and rear enhances the home’s contemporary character.
Location
Pipers Green Lane is a prestigious and tranquil residential address, perfectly positioned to the east of Brockley Hill in the highly sought-after suburb of Stanmore. The area offers an ideal balance of suburban calm and excellent connectivity, making it perfect for families and professionals seeking a relaxed yet well-connected lifestyle.
Residents enjoy easy access to local amenities at Stanmore Broadway and Canons Corner, both just a short walk away, featuring a variety of shops, cafés, restaurants, and everyday conveniences.
Transport links are exceptional. Stanmore Underground Station (Jubilee Line) is within walking distance, providing direct services to Baker Street, Bond Street, and Canary Wharf. Canons Park Station offers an alternative Jubilee Line connection, while Edgware Station (Northern Line), Mill Hill Broadway, and Elstree & Borehamwood (Thameslink) provide additional rail options, including routes to St Pancras International and Luton Airport. For drivers, the A41, M1, and M25 are easily accessible, ensuring seamless travel across London and beyond.
Nearby are excellent amenities including Brent Cross, The Broadwalk, Atria Watford, and Borehamwood, along with prestigious golf courses, parks, and sports facilities. Families benefit from a choice of highly regarded schools in both the state and private sectors.